BIM
知識資源平台
編碼系統
元件分類
廠商列表
數據分析
知識影片
課程資訊
建築名師
服務項目
首頁
編碼系統
元件分類
廠商列表
數據分析
知識影片
課程資訊
建築名師
服務項目
關鍵字搜尋
清除篩選
影音
新版防火門標識(標章)說明
截火套管
上豐化學建材股份有限公司
台達電子
台達電子-空氣品質方案產品部
創優微圖
創優微圖股份有限公司
T.I.G.
台北國際聯合建築師事務所
和成衛浴
和成欣業股份有限公司
防火隔熱
金橋有限公司
約有 64 項結果 (搜尋時間:0.56秒)
排序
最新
點擊數
下載數
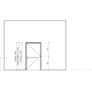
門
單扇肯特鋼製鋼製防火門_喇叭鎖_旗型鉸鏈300
LOD300
7718
7
世紀防火科技股份有限公司
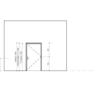
門
單扇肯特鋼製鋼製防火門_匣式機械鎖(E-319)_旗型鉸鏈300
LOD300
9573
9
世紀防火科技股份有限公司
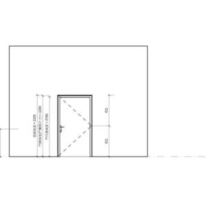
門
單扇肯特鋼製鋼製防火門_匣式電子鎖(WEL-3600)_旗型鉸鏈300
LOD300
9231
6
世紀防火科技股份有限公司
門
單扇肯特鋼製鋼製防火門_平推鎖_旗型鉸鏈300
LOD300
9478
10
世紀防火科技股份有限公司
門
單扇肯特鋼製鋼製防火門_水平鎖輔助_旗型鉸鏈300
LOD300
10466
14
世紀防火科技股份有限公司
門
單扇肯特鋼製鋼木防火門_喇叭鎖_重型鉸鏈300
LOD300
7972
8
世紀防火科技股份有限公司
門
單扇肯特鋼製鋼木防火門_匣式機械鎖(E-319)_重型鉸鏈300
LOD300
8333
9
世紀防火科技股份有限公司
門
單扇肯特鋼製鋼木防火門_匣式電子鎖(WEL-3600)_重型鉸鏈300
LOD300
9712
8
世紀防火科技股份有限公司
門
單扇肯特鋼製鋼木防火門_平推鎖_重型鉸鏈300
LOD300
8594
7
世紀防火科技股份有限公司
門
單扇肯特鋼製鋼木防火門_水平鎖輔助_重型鉸鏈300
LOD300
7986
8
世紀防火科技股份有限公司
門
單扇肯特木製防火門_喇叭鎖_蝶型鉸鏈_400
LOD400
11213
10
世紀防火科技股份有限公司
門
單扇肯特木製防火門_匣式機械鎖(E-319)_蝶型鉸鏈_400
LOD400
11446
11
世紀防火科技股份有限公司
門
單扇肯特木製防火門_匣式電子鎖(WEL-3600)_蝶型鉸鏈_400
LOD400
11317
8
世紀防火科技股份有限公司
門
單扇肯特木製防火門_平推鎖_蝶型鉸鏈400
LOD400
10521
10
世紀防火科技股份有限公司
門
單扇肯特木製防火門_水平輔助鎖_蝶型鉸鏈_400
LOD400
10195
6
世紀防火科技股份有限公司
門
單扇肯特木製防火門_喇叭鎖_蝶型鉸鏈300
LOD300
7783
5
世紀防火科技股份有限公司
門
單扇肯特木製防火門_匣式機械鎖(E-319)_蝶型鉸鏈300
LOD300
9661
6
世紀防火科技股份有限公司
門
單扇肯特木製防火門_匣式電子鎖(WEL-3600)_蝶型鉸鏈300
LOD300
7605
6
世紀防火科技股份有限公司
門
單扇肯特木製防火門_平推鎖_蝶型鉸鏈300
LOD300
8438
8
世紀防火科技股份有限公司
門
單扇肯特木製防火門_水平鎖輔助_蝶型鉸鏈_300
LOD300
8145
9
世紀防火科技股份有限公司
每頁
20
50
100
筆
1
2
3
4