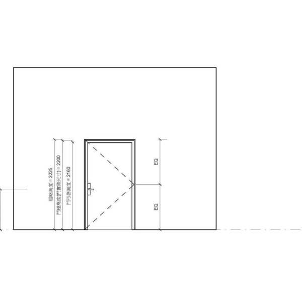
單扇肯特鋼製鋼製防火門_匣式電子鎖(WEL-3600)_旗型鉸鏈300
OmniClass 編碼:23-17 11 31
OmniClass 類別:防火門 Fire Doors
MasterFormat 編碼:08 11 00
MasterFormat 類別:鋼門扇及門樘 Metal Doors and Frames
PCCES 編碼:08 170
LOD:300
元件供應商:世紀防火科技股份有限公司
設計/生產地:臺灣/臺灣
1. 內構材由纖維硫酸複合板與無機複合板接合可增加隔熱係數並可提升結構強度
2. 鋼製門有防潮、防水、增強防盜強度的優點
3. 表面材樣式多變可滿足不同客戶的要求
碳足跡:kgCO2e
資料建置中
初審單位:中華民國全國建築師公會
複審單位:中華民國全國建築師公會
Free
model formats
Revit
-
單扇肯特鋼製鋼製防火門_匣式電子鎖(WEL-3600)_旗型鉸鏈300.rfaver.2018 5.37 MB
ArchiCAD
- 暫無資料
AutoCAD
- 暫無資料
IFC
- 暫無資料
驗證證書
試驗報告書
評分與評論
5.0
共0 則評分
5
4
3
2
1
暫無評論
相關元件
窗
M_楣窗_V13
施正之建築師事務所
11,119
門
M_側燈 1_V13
施正之建築師事務所
10,440
窗
M_窗-圓形開口_V13
施正之建築師事務所
10,276
窗
M_天窗_V13
施正之建築師事務所
11,405
窗
二欄二列之一-上掀窗+緊急進口v17
台北國際聯合建築師事務所
11,267
門
M_單-嵌平可視_V13
施正之建築師事務所
10,131
門
單扇肯特木製防火門
世紀防火科技股份有限公司
12,733

















