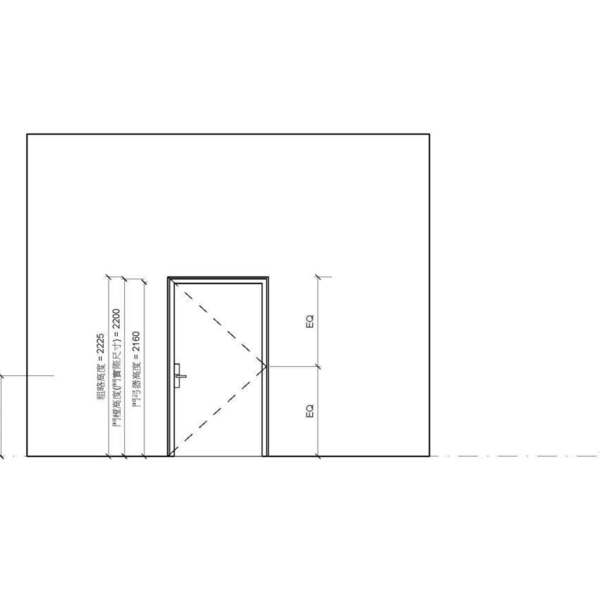
單扇肯特鋼製鋼木防火門_匣式電子鎖(WEL-3600)_重型鉸鏈300
OmniClass 編碼:23-17 11 31
OmniClass 類別:防火門 Fire Doors
MasterFormat 編碼:08 11 00
MasterFormat 類別:鋼門扇及門樘 Metal Doors and Frames
PCCES 編碼:08 170
LOD:300
元件供應商:世紀防火科技股份有限公司
設計/生產地:臺灣/臺灣
1. 內構材由纖維硫酸複合板與無機複合板接合可增加隔熱係數並可提升結構強度
2. 鋼製門有防潮、防水、增強防盜強度的優點
3. 表面材樣式多變可滿足不同客戶的要求
碳足跡:kgCO2e
資料建置中
初審單位:中華民國全國建築師公會
複審單位:中華民國全國建築師公會
Free
model formats
Revit
-
單扇肯特鋼製鋼木防火門_匣式電子鎖(WEL-3600)_重型鉸鏈300.rfaver.2018 5.15 MB
ArchiCAD
- 暫無資料
AutoCAD
- 暫無資料
IFC
- 暫無資料
驗證證書
試驗報告書
評分與評論
5.0
共0 則評分
5
4
3
2
1
暫無評論
相關元件
門
M_單-嵌板 2_V13
施正之建築師事務所
9,871
窗
三欄二列-左右推窗v17
台北國際聯合建築師事務所
9,688
門
單個嵌平_V18
台灣積體電路製造股份有限公司
3,934
門
導擺門_V18
台灣積體電路製造股份有限公司
3,958
窗
M_橢圓裝飾外框_V13
施正之建築師事務所
11,698

















