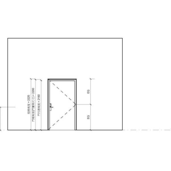
單扇肯特木製防火門_匣式電子鎖(WEL-3600)_蝶型鉸鏈_400
OmniClass 編碼:23-17 11 31
OmniClass 類別:防火門 Fire Doors
MasterFormat 編碼:08 11 00
MasterFormat 類別:鋼門扇及門樘 Metal Doors and Frames
PCCES 編碼:08 170
LOD:400
元件供應商:世紀防火科技股份有限公司
設計/生產地:臺灣/臺灣
1. 內構材是無機複合板可提升結構強度
2. 木製門易加工、重量輕、安裝方便
3. 表面材樣式多變可滿足不同客戶的要求
碳足跡:kgCO2e
資料建置中
初審單位:中華民國全國建築師公會
複審單位:中華民國全國建築師公會
Free
model formats
Revit
-
單扇肯特木製防火門_匣式電子鎖(WEL-3600)_蝶型鉸鏈_400 .rfaver.2018 5.16 MB
ArchiCAD
- 暫無資料
AutoCAD
- 暫無資料
IFC
- 暫無資料
驗證證書
試驗報告書
相關配件
| 類別 | 形式 | 廠牌 |
|---|---|---|
| 門鎖 | 匣式機械鎖 | 崧日、泰登、東鐵、東隆、財神、Häfele、金冠、極優異、上博、多瑪、強棒、廣盈、俐昌、加凱、MOTTURA |
| 門鎖 | 匣式電子鎖 | 怡群、鍾石、華豫寧、加安、三星、YALE、敦義、神盾、日堡、東隆、瑋豪 |
| 門鎖 | 平推鎖 | 加安、凱盟、金冠、東鐵 |
| 門鎖 | 喇叭鎖 | 史丹利、加安、東鐵 |
| 門鎖 | 水平輔助鎖 | 東鐵、東隆、金冠、加安 |
| 門鎖 | 陽極鎖 | 東鐵、廣盈、大友、禮銳、加凱 |
| 門鎖 | 磁力鎖 | 廣盈 |
| 門鎖 | 陰極鎖 | 廣盈、俐昌 |
| 鉸鏈 | 旗型鉸鏈 | 賜福、東鐵、賜福、廣盈、俐昌 |
| 鉸鏈 | 蝶型鉸鏈 | 廣盈、加凱、東鐵、多瑪、賜福、凱盟、Häfele |
| 鉸鏈 | 重型鉸鍊 | 佑叡、裕泰、俐昌 |
| 鉸鏈 | 地鉸鏈 | 凱盟、佑叡、俐昌、多瑪、盈昌、東鐵、加安、廣盈、泰德軾 |
| 鉸鏈 | 非自由鉸鏈 | 東鐵、佑叡、廣盈 |
| 鉸鏈 | 自動回歸鉸鏈 | 笠源 |
| 門弓器 | 外露式門弓器 | 加凱、東鐵、俐昌、加安、東隆、廣盈、泰德軾、新糧 |
| 門弓器 | 隱藏式門弓器 | 泰德軾、加安、東鐵、多瑪、賜福、廣盈、Häfele、台灣宏禕 |
| 門弓器 | 電動門弓器 | 廣盈 |
評分與評論
5.0
共0 則評分
5
4
3
2
1
暫無評論
相關元件
門
滑升門_V18
台灣積體電路製造股份有限公司
3,802
門
M_雙-玻璃 2_V13
施正之建築師事務所
9,676
門
M_側燈 1_V13
施正之建築師事務所
10,440
窗
M_有裝飾外框的滑軌_V13
施正之建築師事務所
10,193
門
玻璃門_男女廁所_90X220
創優微圖股份有限公司
8,696
窗
M_帷幕牆外推窗_V13
施正之建築師事務所
10,364
窗
M_有裝飾外框的上下拉窗_V13
施正之建築師事務所
9,756
門
電梯門_V18
台灣積體電路製造股份有限公司
4,662

















