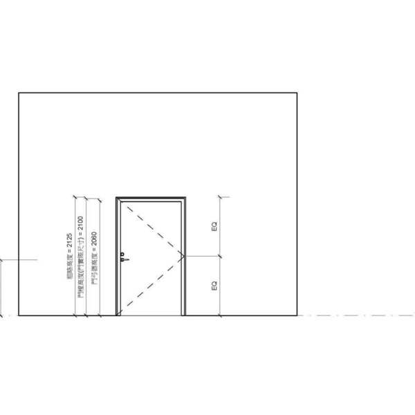
單扇肯特木製防火門_水平鎖輔助_蝶型鉸鏈_300
OmniClass 編碼:23-17 11 31
OmniClass 類別:防火門 Fire Doors
MasterFormat 編碼:08 11 00
MasterFormat 類別:鋼門扇及門樘 Metal Doors and Frames
PCCES 編碼:08 170
LOD:300
元件供應商:世紀防火科技股份有限公司
設計/生產地:臺灣/臺灣
1. 內構材是無機複合板可提升結構強度
2. 木製門易加工、重量輕、安裝方便
3. 表面材樣式多變可滿足不同客戶的要求
碳足跡:kgCO2e
資料建置中
初審單位:中華民國全國建築師公會
複審單位:中華民國全國建築師公會
Free
model formats
Revit
-
單扇肯特木製防火門_水平鎖輔助_蝶型鉸鏈_300.rfaver.2018 5.81 MB
ArchiCAD
- 暫無資料
AutoCAD
- 暫無資料
IFC
- 暫無資料
驗證證書
試驗報告書
評分與評論
5.0
共0 則評分
5
4
3
2
1
暫無評論
相關元件
門
M_門-開口_V13
施正之建築師事務所
10,653
門
緊急升降機門_V18
台灣積體電路製造股份有限公司
3,846
門
M_雙-嵌平-雙動式_V13
施正之建築師事務所
11,367
窗
M_楣窗_V13
施正之建築師事務所
11,119
門
M_單-嵌板 2_V13
施正之建築師事務所
9,871
窗
M_固定_V13
施正之建築師事務所
10,608
窗
M_單-百葉窗_V13
施正之建築師事務所
11,606
門
雙扇木骨架防火門
賜福門窗股份有限公司
14,462

















