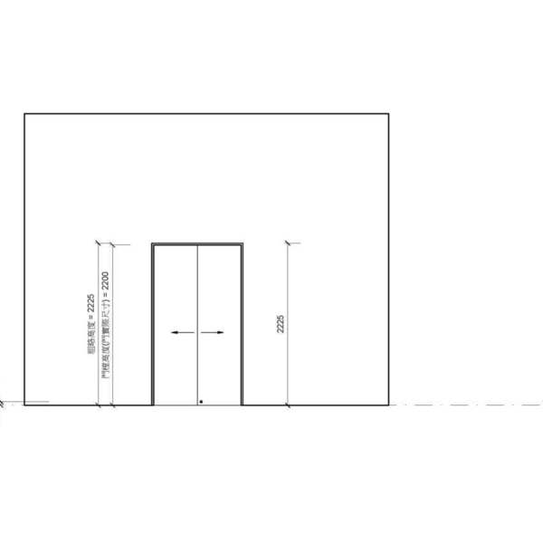
雙扇橫拉木製護鉤防火門(有框)(無門)_地鎖 _自動回歸關門器_400v18
OmniClass 編碼:23-17 11 31
OmniClass 類別:防火門 Fire Doors
MasterFormat 編碼:08 11 00
MasterFormat 類別:鋼門扇及門樘 Metal Doors and Frames
PCCES 編碼:08 170
LOD:400
元件供應商:賜福門窗股份有限公司
設計/生產地:臺灣/臺灣
1. 內構材是無機複合板可提升結構強度
2. 木製門易加工、重量輕、安裝方便
3. 表面材樣式多變可滿足不同客戶的要求
碳足跡:kgCO2e
資料建置中
初審單位:中華民國全國建築師公會
複審單位:中華民國全國建築師公會
Free
model formats
Revit
-
雙扇橫拉木製護鉤防火門(有框)(無門)_地鎖 _自動回歸關門器_400.rfaver.2018 2.66 MB
ArchiCAD
- 暫無資料
AutoCAD
- 暫無資料
IFC
- 暫無資料
驗證證書
試驗報告書
評分與評論
5.0
共0 則評分
5
4
3
2
1
暫無評論
相關元件
窗
M_有裝飾外框的百葉窗_V13
施正之建築師事務所
12,838
門
M_捲簾門_V13
施正之建築師事務所
9,848
門
雙-嵌平_V18
台灣積體電路製造股份有限公司
3,868
門
M_單-玻璃 2_V13
施正之建築師事務所
10,095
門
鍍鋅鋼板烤漆門_複壁_45X45
創優微圖股份有限公司
7,831
窗
M_有裝飾外框的組合櫃_V13
施正之建築師事務所
10,657
門
玻璃門_男女廁所_90X220
創優微圖股份有限公司
8,696
門
滑升門_V18
台灣積體電路製造股份有限公司
3,802

















