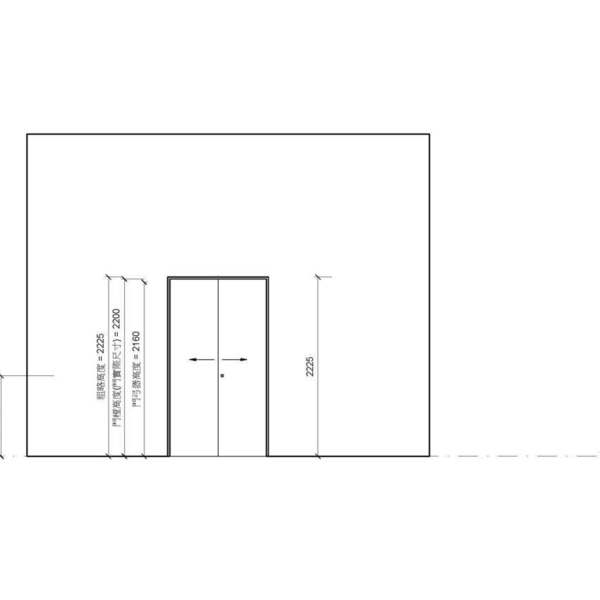
雙扇橫拉木製護鉤防火門(有框)(無門)_勾鎖 _自動回歸關門器_300v18
OmniClass 編碼:23-17 11 31
OmniClass 類別:防火門 Fire Doors
MasterFormat 編碼:08 11 00
MasterFormat 類別:鋼門扇及門樘 Metal Doors and Frames
PCCES 編碼:08 170
LOD:300
元件供應商:賜福門窗股份有限公司
設計/生產地:臺灣/臺灣
1. 內構材是無機複合板可提升結構強度
2. 木製門易加工、重量輕、安裝方便
3. 表面材樣式多變可滿足不同客戶的要求
碳足跡:kgCO2e
資料建置中
初審單位:中華民國全國建築師公會
複審單位:中華民國全國建築師公會
Free
model formats
Revit
-
雙扇橫拉木製護鉤防火門(有框)(無門)_勾鎖 _自動回歸關門器_300.rfaver.2018 1.7 MB
ArchiCAD
- 暫無資料
AutoCAD
- 暫無資料
IFC
- 暫無資料
驗證證書
試驗報告書
評分與評論
5.0
共0 則評分
5
4
3
2
1
暫無評論
相關元件
門
M_單-玻璃 2_V13
施正之建築師事務所
10,095
窗
二欄二列之右推左掀v17
台北國際聯合建築師事務所
7,396
門
M_帷幕牆單玻璃_V13
施正之建築師事務所
10,619
窗
M_有裝飾外框的滑軌_V13
施正之建築師事務所
10,193
門
單扇木骨架防火門
賜福門窗股份有限公司
13,025
門
M_雙-嵌平-雙動式_V13
施正之建築師事務所
11,367
窗
M_有裝飾外框的上下拉窗_V13
施正之建築師事務所
9,756
門
單扇肯特鋼製防火門
世紀防火科技股份有限公司
12,499
門
雙-嵌平_V18
台灣積體電路製造股份有限公司
3,868

















