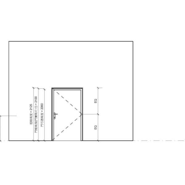
單扇木骨架木製防火門_匣式機械鎖(E-319)_蝶型鉸鏈300
OmniClass 編碼:23-17 11 31
OmniClass 類別:防火門 Fire Doors
MasterFormat 編碼:08 11 00
MasterFormat 類別:鋼門扇及門樘 Metal Doors and Frames
PCCES 編碼:08 170
LOD:300
元件供應商:賜福門窗股份有限公司
設計/生產地:臺灣/臺灣
1. 內構材由矽酸鈣板及陶瓷纖維棉所組成
2. 木製門易加工、重量輕、安裝方便
3. 表面材樣式多變可滿足不同客戶的要求
碳足跡:kgCO2e
資料建置中
初審單位:中華民國全國建築師公會
複審單位:中華民國全國建築師公會
Free
model formats
Revit
-
單扇木骨架木製防火門_匣式機械鎖(E-319)_蝶型鉸鏈300.rfaver.2018 5.21 MB
ArchiCAD
- 暫無資料
AutoCAD
- 暫無資料
IFC
- 暫無資料
驗證證書
試驗報告書
評分與評論
5.0
共0 則評分
5
4
3
2
1
暫無評論
相關元件
門
單扇肯特木製防火門
世紀防火科技股份有限公司
12,733
窗
橫拉窗(上拉+下固)_V20
施正之建築師事務所
6,238
門
M_帷幕牆單玻璃_V13
施正之建築師事務所
10,619
窗
M_有裝飾外框的雙扇推開窗_V13
施正之建築師事務所
10,107
門
M_側燈 2_V13
施正之建築師事務所
9,124
窗
M_有裝飾外框的推拉窗_V13
施正之建築師事務所
10,410

















