BIM
知識資源平台
編碼系統
元件分類
廠商列表
數據分析
知識影片
課程資訊
建築名師
服務項目
首頁
編碼系統
元件分類
廠商列表
數據分析
知識影片
課程資訊
建築名師
服務項目
關鍵字搜尋
清除篩選
元件專區
社宅元件
設計元件
施工元件
法規元件
營建設備元件
機電元件
結構土木元件
消防元件
點景元件
勞工安全衛生元件
Green-BIM元件
影音
新版防火門標識(標章)說明
截火套管
上豐化學建材股份有限公司
台達電子
台達電子-空氣品質方案產品部
創優微圖
創優微圖股份有限公司
T.I.G.
台北國際聯合建築師事務所
和成衛浴
和成欣業股份有限公司
防火隔熱
金橋有限公司
元件專區
結構土木元件
排序
最新
點擊數
下載數
土建結構
通用樑_V18
LOD400
5599
27
台灣積體電路製造股份有限公司
土建結構
混凝土-矩形-樑_V18
LOD400
3248
62
台灣積體電路製造股份有限公司
土建結構
通用柱2_V18
LOD400
2644
22
台灣積體電路製造股份有限公司
土建結構
混凝土-矩形-柱_V18
LOD400
3173
68
台灣積體電路製造股份有限公司
土建結構
通用柱1_V18
LOD400
5227
29
台灣積體電路製造股份有限公司
土建結構
混凝土-正方形-柱_V18
LOD400
2900
35
台灣積體電路製造股份有限公司
金屬建材
翼板厚度漸變槽鋼 380x100x10.5x16_V20
LOD300
7596
2
施正之建築師事務所
金屬建材
翼板厚度漸變槽鋼 380x100x10.5x16_V20
LOD300
7842
1
施正之建築師事務所
金屬建材
翼板厚度漸變槽鋼 300x90x9x13_V20
LOD300
7380
0
施正之建築師事務所
金屬建材
翼板厚度漸變槽鋼 200x90x8x13.5_V20
LOD300
7597
0
施正之建築師事務所
金屬建材
I型鋼 250x125x10x19_V20
LOD300
6662
0
施正之建築師事務所
金屬建材
I型鋼 200x100x7x10_V20
LOD300
7195
1
施正之建築師事務所
金屬建材
H型鋼 828x308x22x40_V20
LOD300
7057
1
施正之建築師事務所
金屬建材
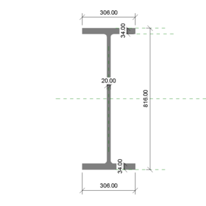
H型鋼 816x306x20x34_V20
LOD300
6583
0
施正之建築師事務所
金屬建材
H型鋼 808x302x16x30_V20
LOD300
7064
0
施正之建築師事務所
金屬建材
H型鋼 800x300x14x26_V20
LOD300
6783
0
施正之建築師事務所
金屬建材
H型鋼 792x300x14x22_V20
LOD300
7584
0
施正之建築師事務所
金屬建材
H型鋼 732x311x24x40_V20
LOD300
6533
0
施正之建築師事務所
金屬建材
H型鋼 718x308x21x33_V20
LOD300
7148
0
施正之建築師事務所
金屬建材
H型鋼 692x300x13x20_V20
LOD300
6923
0
施正之建築師事務所
每頁
20
50
100
筆
1
2
3
4
...
37
38