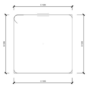
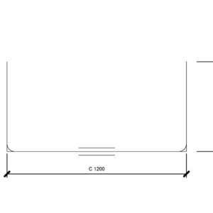
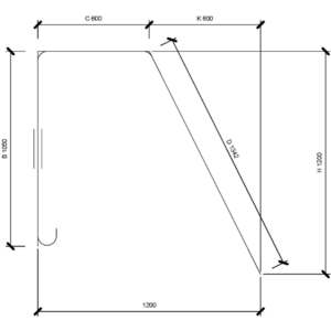
混凝土-正方形-柱_V18
OmniClass 編碼:22-03 11 13 16
OmniClass 類別:混凝土支柱 Concrete Shoring
MasterFormat 編碼:03 11 13.16
MasterFormat 類別:混凝土支撐 Concrete Shoring
PCCES 編碼:03 000
PCCES 類別:混凝土 Concrete
LOD:400
元件供應商:台灣積體電路製造股份有限公司
設計/生產地:資料建置中
產品網址:資料建置中
資料建置中
碳足跡:kgCO2e
資料建置中
初審單位:中華民國全國建築師公會
複審單位:中華民國全國建築師公會
Free
model formats
Revit
-
混凝土-正方形-柱.rfaver.2018 280 KB
ArchiCAD
- 暫無資料
AutoCAD
- 暫無資料
IFC
- 暫無資料
相關配件
| 類別 | 形式 | 廠牌 |
|---|---|---|
| 暫無資料 | ||
評分與評論
5.0
共0 則評分
5
4
3
2
1
暫無評論
相關元件
柱
M_05_V25
低碳數位營建聯盟
373
板
陶粒輕質氣泡混凝土牆板_V18.rfa
金橋有限公司
7,917
柱
M_預鑄-含矩形叉支承的矩形柱_V13
施正之建築師事務所
10,224
柱
M_04_V25
低碳數位營建聯盟
315
柱
M_T6_V25
低碳數位營建聯盟
408
板
陶粒輕質氣泡混凝土牆板_V18.rvt
金橋有限公司
8,332
柱
M_鋼條彎曲 10-25
施正之建築師事務所
8,157
柱
M_T8_V25
低碳數位營建聯盟
371
柱
M_17_V25
低碳數位營建聯盟
326

