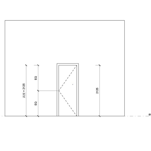
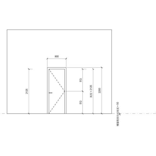
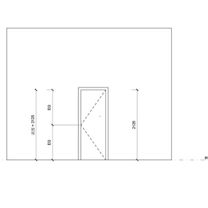
玻璃門_中控機房.儲藏室.機房_90X220
OmniClass 編碼:23-17 11 00
OmniClass 類別:門 Doors
MasterFormat 編碼:08 00 00
MasterFormat 類別:門窗 Openings
PCCES 編碼:08 000
PCCES 類別:門窗 Doors and Windows
LOD:300
元件供應商:創優微圖股份有限公司
設計/生產地:資料建置中
產品網址:資料建置中
資料建置中
碳足跡:kgCO2e
資料建置中
初審單位:中華民國全國建築師公會
複審單位:中華民國全國建築師公會
NT$30
model formats
Revit
-
玻璃門_中控機房.儲藏室.機房_90X220.rfaver.2018 364 KB
ArchiCAD
- 暫無資料
AutoCAD
- 暫無資料
IFC
- 暫無資料
評分與評論
5.0
共0 則評分
5
4
3
2
1
暫無評論
相關元件
門
M_滑軌-2 嵌板_V13
施正之建築師事務所
9,795
窗
二欄二列之右推左掀v17
台北國際聯合建築師事務所
7,396
門
雙-嵌平_V18
台灣積體電路製造股份有限公司
3,868
門
M_單-嵌板 4_V13
施正之建築師事務所
9,731
門
緊急升降機門_V18
台灣積體電路製造股份有限公司
3,846
窗
百葉窗_V18
台灣積體電路製造股份有限公司
4,105
窗
M_橢圓裝飾外框_V13
施正之建築師事務所
11,698
窗
M_單-百葉窗_V13
施正之建築師事務所
11,606















