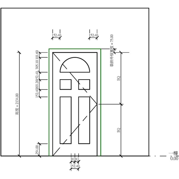
M_單-裝飾 2_V13
OmniClass 編碼:23-17 11 00
OmniClass 類別:門 Doors
MasterFormat 編碼:08 00 00
MasterFormat 類別:門窗 Openings
PCCES 編碼:08 000
PCCES 類別:門窗 Doors and Windows
LOD:300
元件供應商:施正之建築師事務所
設計/生產地:資料建置中
產品網址:資料建置中
資料建置中
碳足跡:kgCO2e
資料建置中
初審單位:中華民國全國建築師公會
複審單位:中華民國全國建築師公會
Free
model formats
Revit
-
M_單-裝飾 2.rfaver.2013 276 KB
ArchiCAD
- 暫無資料
AutoCAD
- 暫無資料
IFC
- 暫無資料
評分與評論
5.0
共0 則評分
5
4
3
2
1
暫無評論
相關元件
門
M_雙-嵌平-雙動式_V13
施正之建築師事務所
11,367
門
滑升門_V18
台灣積體電路製造股份有限公司
3,802
門
M_雙-嵌平_V13
施正之建築師事務所
11,292
門
鍍鋅鋼板烤漆門_複壁_45X45
創優微圖股份有限公司
7,831
門
單扇木骨架防火門
賜福門窗股份有限公司
13,025













