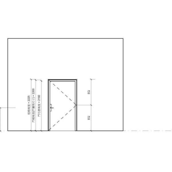
單扇木骨架木製防火門_匣式電子鎖(WEL-3600)_蝶型鉸鏈300
OmniClass 編碼:23-17 11 31
OmniClass 類別:防火門 Fire Doors
MasterFormat 編碼:08 11 00
MasterFormat 類別:鋼門扇及門樘 Metal Doors and Frames
PCCES 編碼:08 170
LOD:300
元件供應商:賜福門窗股份有限公司
設計/生產地:臺灣/臺灣
1. 內構材由矽酸鈣板及陶瓷纖維棉所組成
2. 木製門易加工、重量輕、安裝方便
3. 表面材樣式多變可滿足不同客戶的要求
碳足跡:kgCO2e
資料建置中
初審單位:中華民國全國建築師公會
複審單位:中華民國全國建築師公會
Free
model formats
Revit
-
單扇木骨架木製防火門_匣式電子鎖(WEL-3600)_蝶型鉸鏈300.rfaver.2018 6.25 MB
ArchiCAD
- 暫無資料
AutoCAD
- 暫無資料
IFC
- 暫無資料
驗證證書
試驗報告書
評分與評論
5.0
共0 則評分
5
4
3
2
1
暫無評論
相關元件
窗
一欄二列雙開窗v17
台北國際聯合建築師事務所
10,184
門
雙扇橫拉防火門(有框)
賜福門窗股份有限公司
17,361
窗
M_圓形裝飾外框_V13
施正之建築師事務所
11,229
窗
M_有裝飾外框的百葉窗_V13
施正之建築師事務所
12,838
門
M_摺疊門-4 嵌板_V13
施正之建築師事務所
12,142
門
M_單-裝飾 1_V13
施正之建築師事務所
9,243
窗
M_有裝飾外框的外推窗_V13
施正之建築師事務所
9,436
窗
M_有裝飾外框的推開窗_V13
施正之建築師事務所
9,856
窗
一欄二列推窗v17
台北國際聯合建築師事務所
10,805















