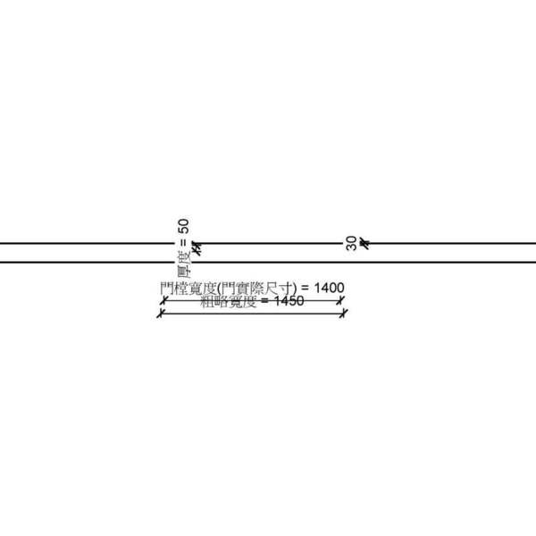
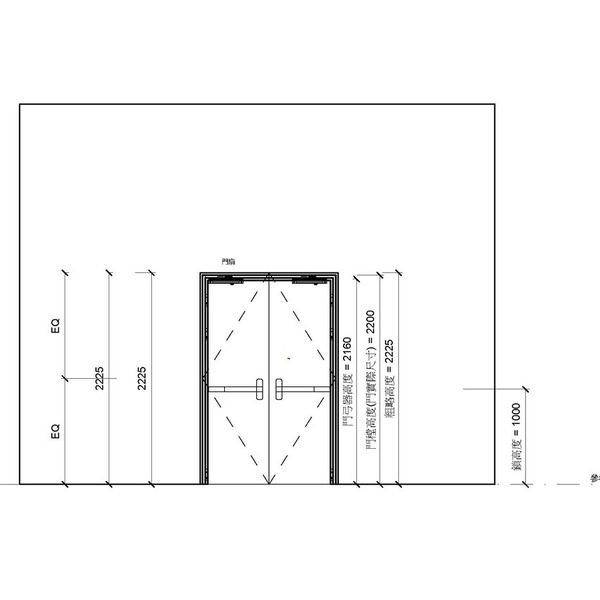
雙扇木骨架鋼木防火門_平推鎖_重型鉸鏈_外露式門弓器_400v18
OmniClass 編碼:23-17 11 31
OmniClass 類別:防火門 Fire Doors
MasterFormat 編碼:08 11 00
MasterFormat 類別:鋼門扇及門樘 Metal Doors and Frames
PCCES 編碼:08 170
LOD:400
元件供應商:賜福門窗股份有限公司
設計/生產地:臺灣/臺灣
1. 內構材由矽酸鈣板及陶瓷纖維棉所組成
2. 木製門易加工、重量輕、安裝方便
3. 表面材鋼板樣式多變可滿足不同客戶的要求
碳足跡:kgCO2e
資料建置中
初審單位:中華民國全國建築師公會
複審單位:中華民國全國建築師公會
Free
model formats
Revit
-
雙扇木骨架鋼木防火門_平推鎖_重型鉸鏈_外露式門弓器_400.rfaver.2018 6.2 MB
ArchiCAD
- 暫無資料
AutoCAD
- 暫無資料
IFC
- 暫無資料
驗證證書
試驗報告書
相關配件
| 類別 | 形式 | 廠牌 |
|---|---|---|
| 門鎖 | 匣式機械鎖 | 崧日、泰登、東鐵、東隆、財神、Häfele、金冠、上博、多瑪、強棒、廣盈、極優異、MOTTURA |
| 門鎖 | 匣式電子鎖 | 怡群、鍾石、華豫寧、三星、敦義、加安、琺博、YALE、神盾、泰榮、星風、日堡、門神、東隆 |
| 門鎖 | 平推鎖 | 凱盟、金冠、加安、強棒、東鐵 |
| 門鎖 | 喇叭鎖 | 史丹利、加安 |
| 門鎖 | 水平輔助鎖 | 東隆、金冠、東鐵、加安 |
| 門鎖 | 陽極鎖 | 東鐵、廣盈、大友、禮銳、賜福 |
| 門鎖 | 磁力鎖 | 廣盈 |
| 門鎖 | 陰極鎖 | 廣盈、俐昌 |
| 鉸鏈 | 旗型鉸鏈 | 賜福、東鐵、強棒、廣盈 |
| 鉸鏈 | 蝶型鉸鏈 | 廣盈、東鐵、多瑪、賜福、凱盟、Häfele、加凱 |
| 鉸鏈 | 重型鉸鍊 | 佑叡、裕泰、俐昌 |
| 鉸鏈 | 地鉸鏈 | 凱盟、加安、多瑪、VGO、佑叡、俐昌、盈昌、東鐵、廣盈、泰德軾 |
| 鉸鏈 | 非自由鉸鏈 | 東鐵、佑叡、廣盈 |
| 鉸鏈 | 自動回歸鉸鏈 | 笠源 |
| 門弓器 | 外露式門弓器 | VGO、俐昌、加安、東隆、廣盈、泰德軾、新糧 |
| 門弓器 | 隱藏式門弓器 | 泰德軾、加安、東鐵、多瑪、賜福、廣盈、Häfele、台灣宏禕 |
| 門弓器 | 電動門弓器 | 廣盈 |
評分與評論
5.0
共0 則評分
5
4
3
2
1
暫無評論
相關元件
窗
M_固定_V13
施正之建築師事務所
10,608
窗
一欄二列推窗v17
台北國際聯合建築師事務所
10,805
窗
M_有裝飾外框的推開窗_V13
施正之建築師事務所
9,856
窗
M_上下拉窗_V13
施正之建築師事務所
9,850
門
鍍鋅鋼板烤漆門_複壁_45X45
創優微圖股份有限公司
7,831

















