BIM
知識資源平台
編碼系統
元件分類
廠商列表
數據分析
知識影片
課程資訊
建築名師
服務項目
首頁
編碼系統
元件分類
廠商列表
數據分析
知識影片
課程資訊
建築名師
服務項目
OmniClass LOD300
OmniClass LOD400
MasterFormat LOD300
MasterFormat LOD400
PCCES LOD300
PCCES LOD400
關鍵字搜尋
清除篩選
編碼系統
OmniClass編碼
MasterFormat編碼
PCCES編碼
發展程度
LOD300
LOD400
影音
新版防火門標識(標章)說明
截火套管
上豐化學建材股份有限公司
台達電子
台達電子-空氣品質方案產品部
創優微圖
創優微圖股份有限公司
T.I.G.
台北國際聯合建築師事務所
和成衛浴
和成欣業股份有限公司
防火隔熱
金橋有限公司
23-35 33 00
電氣導管電纜槽構件
Electrical Ducting Wireways Components
排序
最新
點擊數
下載數
機電設備
M_溝槽緩和接條
LOD300
9714
8
施正之建築師事務所
機電設備
M_溝槽活接頭
LOD300
10038
9
施正之建築師事務所
機電設備
M_溝槽垂直外彎
LOD300
9771
9
施正之建築師事務所
機電設備
M_溝槽垂直內彎
LOD300
10741
10
施正之建築師事務所
機電設備
M_溝槽水平彎曲
LOD300
9475
9
施正之建築師事務所
機電設備
M_溝槽水平交叉
LOD300
9184
8
施正之建築師事務所
機電設備
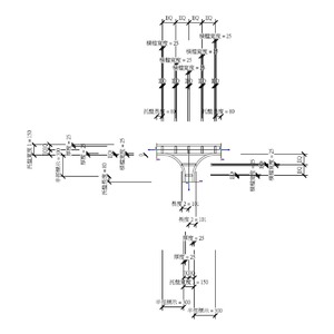
M_溝槽水平 T 接頭
LOD300
10745
11
施正之建築師事務所
機電設備
M_梯緩和接條
LOD300
9646
9
施正之建築師事務所
機電設備
M_梯活接頭
LOD300
9849
12
施正之建築師事務所
機電設備
M_梯垂直外彎
LOD300
9286
15
施正之建築師事務所
機電設備
M_梯垂直內彎
LOD300
9206
13
施正之建築師事務所
機電設備
M_梯水平彎曲
LOD300
10302
11
施正之建築師事務所
機電設備
M_梯水平交叉
LOD300
9806
10
施正之建築師事務所
機電設備
M_梯水平 T 接頭
LOD300
11107
11
施正之建築師事務所
每頁
20
50
100
筆
1