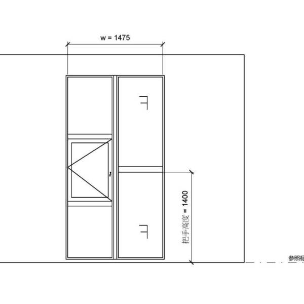
高級隔音氣密固定窗+推拉隔音氣密窗_WIN236FD+361FF_1475X2800_W9_外右
OmniClass 編碼:23-17 13 00
OmniClass 類別:窗 Windows
MasterFormat 編碼:08 00 00
MasterFormat 類別:門窗 Openings
PCCES 編碼:08 500
PCCES 類別:窗 Windows
LOD:300
元件供應商:創優微圖股份有限公司
設計/生產地:資料建置中
產品網址:資料建置中
資料建置中
碳足跡:kgCO2e
資料建置中
初審單位:中華民國全國建築師公會
複審單位:中華民國全國建築師公會
NT$30
model formats
Revit
-
高級隔音氣密固定窗+推拉隔音氣密窗_WIN236FD+361FF_1475X2800_W9_外右.rfaver.2018 384 KB
ArchiCAD
- 暫無資料
AutoCAD
- 暫無資料
IFC
- 暫無資料
評分與評論
5.0
共0 則評分
5
4
3
2
1
暫無評論
相關元件
窗
二欄二列之右推左掀v17
台北國際聯合建築師事務所
7,396
門
M_側燈 1_V13
施正之建築師事務所
10,440
門
滑升門_V18
台灣積體電路製造股份有限公司
3,802
門
M_單-嵌板 3_V13
施正之建築師事務所
10,048
門
M_滑軌-2 嵌板_V13
施正之建築師事務所
9,795
門
M_單個嵌平_V13
施正之建築師事務所
11,286
窗
M_有裝飾外框的雙扇推開窗_V13
施正之建築師事務所
10,107
門
單扇肯特鋼製防火門
世紀防火科技股份有限公司
12,499
窗
M_有裝飾外框的推開窗_V13
施正之建築師事務所
9,856















