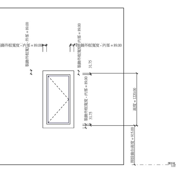
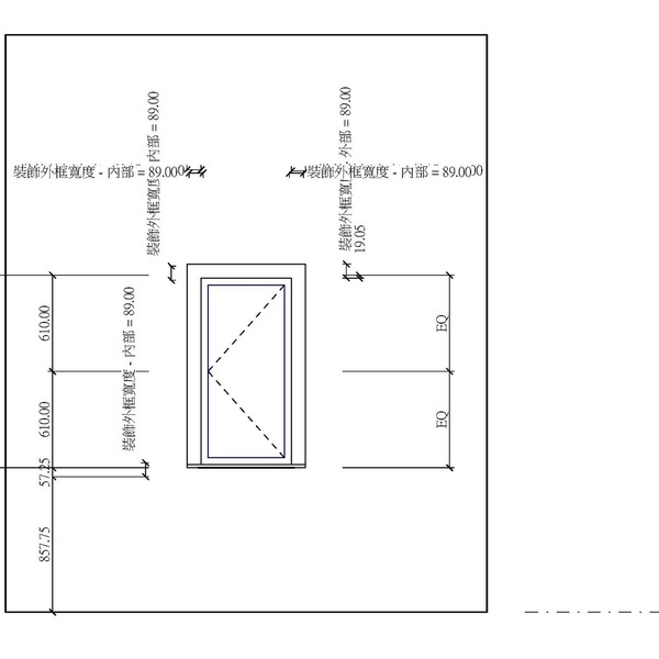
M_有裝飾外框的推開窗_V13
OmniClass 編碼:23-17 13 00
OmniClass 類別:窗 Windows
MasterFormat 編碼:08 00 00
MasterFormat 類別:門窗 Openings
PCCES 編碼:08 500
PCCES 類別:窗 Windows
LOD:300
元件供應商:施正之建築師事務所
設計/生產地:資料建置中
產品網址:資料建置中
資料建置中
碳足跡:kgCO2e
資料建置中
初審單位:中華民國全國建築師公會
複審單位:中華民國全國建築師公會
Free
model formats
Revit
-
M_有裝飾外框的推開窗.rfaver.2013 284 KB
ArchiCAD
- 暫無資料
AutoCAD
- 暫無資料
IFC
- 暫無資料
評分與評論
5.0
共0 則評分
5
4
3
2
1
暫無評論
相關元件
門
單扇肯特鋼製防火門
世紀防火科技股份有限公司
12,499
窗
橫拉窗(上拉+下固)_V20
施正之建築師事務所
6,238
門
M_摺疊門-4 嵌板_V13
施正之建築師事務所
12,142
窗
三欄二列-左右推窗v17
台北國際聯合建築師事務所
9,688
窗
M_有裝飾外框的滑軌_V13
施正之建築師事務所
10,193
窗
一欄二列雙開窗v17
台北國際聯合建築師事務所
10,184













