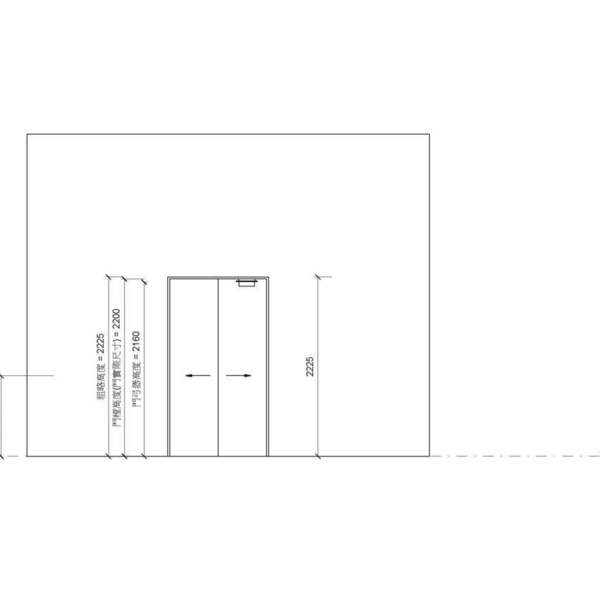
雙扇橫拉木製護鉤防火門(有框)(無門)_陽極鎖 _自動回歸關門器_300v18
OmniClass 編碼:23-17 11 31
OmniClass 類別:防火門 Fire Doors
MasterFormat 編碼:08 11 00
MasterFormat 類別:鋼門扇及門樘 Metal Doors and Frames
PCCES 編碼:08 170
LOD:300
元件供應商:賜福門窗股份有限公司
設計/生產地:臺灣/臺灣
1. 內構材是無機複合板可提升結構強度
2. 木製門易加工、重量輕、安裝方便
3. 表面材樣式多變可滿足不同客戶的要求
碳足跡:kgCO2e
資料建置中
初審單位:中華民國全國建築師公會
複審單位:中華民國全國建築師公會
Free
model formats
Revit
-
雙扇橫拉木製護鉤防火門(有框)(無門)_陽極鎖 _自動回歸關門器_300.rfaver.2018 1.22 MB
ArchiCAD
- 暫無資料
AutoCAD
- 暫無資料
IFC
- 暫無資料
驗證證書
試驗報告書
評分與評論
5.0
共0 則評分
5
4
3
2
1
暫無評論
相關元件
窗
一欄二列上掀窗v17
台北國際聯合建築師事務所
9,910
窗
M_例證 - 固定_V13
施正之建築師事務所
8,998
窗
固定窗_V18
台灣積體電路製造股份有限公司
4,226
門
玻璃門_男女廁所_90X220
創優微圖股份有限公司
8,696
門
M_側燈 2_V13
施正之建築師事務所
9,124
門
雙-嵌平_V18
台灣積體電路製造股份有限公司
3,868
門
單扇肯特木製防火門
世紀防火科技股份有限公司
12,733
窗
M_有裝飾外框的上下拉窗_V13
施正之建築師事務所
9,756

















