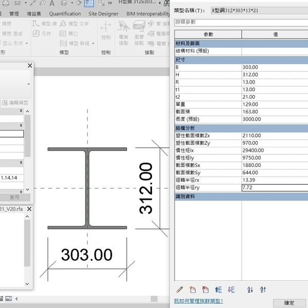
H型鋼312x303x13x21_V20
OmniClass 編碼:23-13 35 00
OmniClass 類別:構架產品 Framing Products
MasterFormat 編碼:05 12 00
MasterFormat 類別:結構鋼 Structural Steel Framing
PCCES 編碼:05 120
PCCES 類別:結構鋼 Structural Steel
LOD:300
元件供應商:施正之建築師事務所
設計/生產地:資料建置中
產品網址:資料建置中
資料建置中
碳足跡:kgCO2e
資料建置中
初審單位:中華民國全國建築師公會
複審單位:中華民國全國建築師公會
NT$30
model formats
Revit
-
H型鋼 312x303x13x21_V20.rfaver.2020 608 KB
ArchiCAD
- 暫無資料
AutoCAD
- 暫無資料
IFC
- 暫無資料
評分與評論
5.0
共0 則評分
5
4
3
2
1
暫無評論
相關元件
柱
M_樁頂蓋-9 樁_V13
施正之建築師事務所
12,079
柱
M_ST-結構 T 接頭_V13
施正之建築師事務所
13,326
板
M_預鑄-倒置 T 接頭_V13
施正之建築師事務所
12,441
柱
RHS-矩形空心剖面_V13
施正之建築師事務所
12,110
外牆
M_地面 CMU-頂部
施正之建築師事務所
10,274
樑
M_混凝土-矩形樑_V13
施正之建築師事務所
12,354
柱
M_VG 次龍骨_V13
施正之建築師事務所
12,901
外牆
M_灰漿-剖面
施正之建築師事務所
12,389
外牆
M_絕緣連接 HIT-BX-MOD
施正之建築師事務所
13,443
樑
M_雙 T 形托樑-頂部
施正之建築師事務所
10,704
柱
M_樁頂蓋-1 樁_V13
施正之建築師事務所
12,049
柱
M_樁頂蓋-6 樁_V13
施正之建築師事務所
11,889













