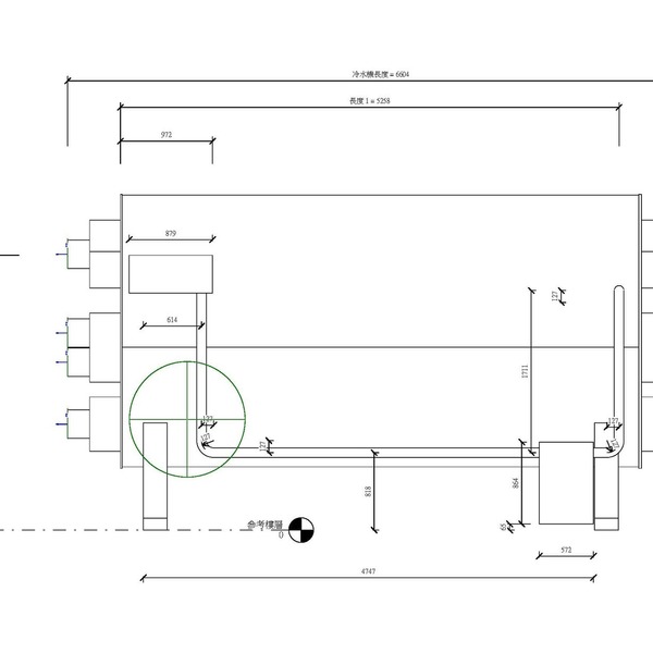
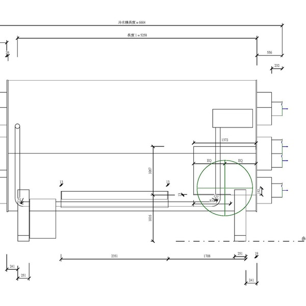
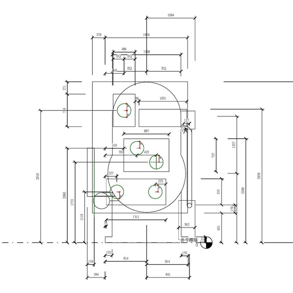
M_吸收式冷水機 - 單效 - 3428-4747 kW
OmniClass 編碼:22-23 64 00
OmniClass 類別:組合式水冷凍 Packaged Water Chillers
MasterFormat 編碼:23 64 00
MasterFormat 類別:包裝的冷水機 Packaged Water Chillers
PCCES 編碼:15 620
PCCES 類別:冰水機組 Packaged Water Chillers
LOD:300
元件供應商:施正之建築師事務所
設計/生產地:資料建置中
產品網址:資料建置中
資料建置中
碳足跡:kgCO2e
資料建置中
初審單位:中華民國全國建築師公會
複審單位:中華民國全國建築師公會
Free
model formats
Revit
-
M_吸收式冷水機 - 單效 - 3428-4747 kW.rfaver.2018 440 KB
ArchiCAD
- 暫無資料
AutoCAD
- 暫無資料
IFC
- 暫無資料
評分與評論
5.0
共0 則評分
5
4
3
2
1
暫無評論
相關元件
空調工程
M_AHU 風機模組 - 後端排放
施正之建築師事務所
14,784
空調工程
M_暖氣機 - 蒸氣
施正之建築師事務所
14,940
液體工程
M_污水泵 - 水平排放
施正之建築師事務所
12,668
液體工程
M_同軸泵
施正之建築師事務所
11,921















