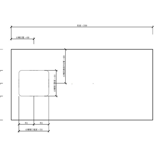
M_流理台面-獨立型工作台有水槽孔
OmniClass 編碼:22-12 30 00
OmniClass 類別:櫥櫃 Casework
MasterFormat 編碼:06 41 93
MasterFormat 類別:櫥櫃和抽屜硬件 Cabinet and Drawer Hardware
PCCES 編碼:12 300
PCCES 類別:廠製產品櫥櫃 Manufactured Casework
LOD:300
元件供應商:施正之建築師事務所
設計/生產地:資料建置中
產品網址:資料建置中
資料建置中
碳足跡:kgCO2e
資料建置中
初審單位:中華民國全國建築師公會
複審單位:中華民國全國建築師公會
Free
model formats
Revit
-
M_流理台面-獨立型工作台有水槽孔.rfaver.2018 240 KB
ArchiCAD
- 暫無資料
AutoCAD
- 暫無資料
IFC
- 暫無資料
評分與評論
5.0
共0 則評分
5
4
3
2
1
暫無評論
相關元件
住宅家具與設備
M_高櫥櫃-雙門(4)
施正之建築師事務所
8,328
住宅家具與設備
M_咖啡桌_V13
施正之建築師事務所
8,235
住宅家具與設備
M_腳踏格板-剖面
施正之建築師事務所
8,262
住宅家具與設備
M_基本櫥櫃-填墊
施正之建築師事務所
9,854
住宅家具與設備
M_椅-疊椅_V13
施正之建築師事務所
8,050
住宅家具與設備
M_娛樂中心_V13
施正之建築師事務所
8,584
住宅家具與設備
M_書桌_V13
施正之建築師事務所
8,389
住宅家具與設備
M_餐具櫥_V13
施正之建築師事務所
8,607
辦公設施設備
推疊椅_V18
台灣積體電路製造股份有限公司
3,119
住宅家具與設備
M_有水槽孔的流理台面
施正之建築師事務所
9,667













