BIM
知識資源平台
編碼系統
元件分類
廠商列表
數據分析
知識影片
課程資訊
建築名師
服務項目
首頁
編碼系統
元件分類
廠商列表
數據分析
知識影片
課程資訊
建築名師
服務項目
OmniClass LOD300
OmniClass LOD400
MasterFormat LOD300
MasterFormat LOD400
PCCES LOD300
PCCES LOD400
關鍵字搜尋
清除篩選
編碼系統
OmniClass編碼
MasterFormat編碼
PCCES編碼
發展程度
LOD300
LOD400
影音
新版防火門標識(標章)說明
截火套管
上豐化學建材股份有限公司
台達電子
台達電子-空氣品質方案產品部
創優微圖
創優微圖股份有限公司
T.I.G.
台北國際聯合建築師事務所
和成衛浴
和成欣業股份有限公司
防火隔熱
金橋有限公司
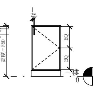
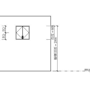
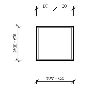
22-12 30 00
櫥櫃
Casework
排序
最新
點擊數
下載數
廚具建材
單房櫥櫃(B)
LOD300
8267
98
宗陞智能工程有限公司
廚具建材
三房櫥櫃
LOD300
7350
105
宗陞智能工程有限公司
廚具建材
二房櫥櫃
LOD300
8107
106
宗陞智能工程有限公司
廚具建材
二房廚房洗手台
LOD300
7957
40
宗陞智能工程有限公司
廚具建材
M_上層櫥櫃-雙門-牆
LOD300
8952
11
施正之建築師事務所
廚具建材
M_上層櫥櫃-填墊-牆
LOD300
9582
6
施正之建築師事務所
廚具建材
M_上層櫥櫃-單門-牆
LOD300
9478
13
施正之建築師事務所
廚具建材
M_上層櫥櫃-高角櫃 1-牆
LOD300
8682
8
施正之建築師事務所
廚具建材
M_上層櫥櫃-角櫃-牆
LOD300
8794
9
施正之建築師事務所
廚具建材
M_上層櫥櫃-有玻璃雙門-牆
LOD300
8960
10
施正之建築師事務所
廚具建材
M_上層櫥櫃-有玻璃單門-牆
LOD300
8168
8
施正之建築師事務所
廚具建材
M_基本櫥櫃-4 抽屜
LOD300
8361
7
施正之建築師事務所
廚具建材
M_基本櫥櫃-雙門洗滌槽
LOD300
9116
15
施正之建築師事務所
廚具建材
M_基本櫥櫃-雙門和 2 抽屜
LOD300
8795
11
施正之建築師事務所
廚具建材
M_基本櫥櫃-角櫃-有角的
LOD300
8405
13
施正之建築師事務所
廚具建材
M_高櫥櫃-2 門-內建
LOD300
8135
14
施正之建築師事務所
廚具建材
M_基本櫥櫃-單門有滑軌抽屜
LOD300
9479
12
施正之建築師事務所
廚具建材
M_基本櫥櫃-內建
LOD300
9194
7
施正之建築師事務所
廚具建材
M_高櫥櫃-雙門(4)
LOD300
8328
17
施正之建築師事務所
廚具建材
M_基本櫥櫃-單門
LOD300
8813
10
施正之建築師事務所
每頁
20
50
100
筆
1
2