BIM
知識資源平台
編碼系統
元件分類
廠商列表
數據分析
知識影片
課程資訊
建築名師
服務項目
首頁
編碼系統
元件分類
廠商列表
數據分析
知識影片
課程資訊
建築名師
服務項目
關鍵字搜尋
清除篩選
影音
新版防火門標識(標章)說明
截火套管
上豐化學建材股份有限公司
台達電子
台達電子-空氣品質方案產品部
創優微圖
創優微圖股份有限公司
T.I.G.
台北國際聯合建築師事務所
和成衛浴
和成欣業股份有限公司
防火隔熱
金橋有限公司
約有 860 項結果 (搜尋時間:0.44秒)
排序
最新
點擊數
下載數
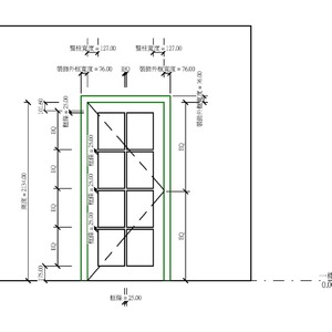
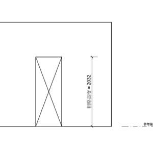
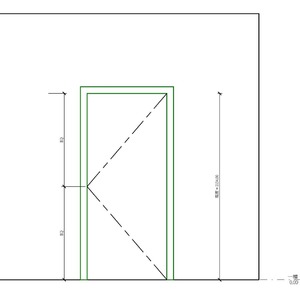
門
M_單-嵌板 3_V13
LOD300
10048
8
施正之建築師事務所
門
M_單-嵌板 2_V13
LOD300
9871
12
施正之建築師事務所
門
M_單-嵌板 1_V13
LOD300
10639
14
施正之建築師事務所
門
M_單-嵌平-雙動式_V13
LOD300
10174
11
施正之建築師事務所
門
M_單-嵌平可視_V13
LOD300
10131
12
施正之建築師事務所
門
M_單個嵌平_V13
LOD300
11286
11
施正之建築師事務所
門
M_單-玻璃 2_V13
LOD300
10095
16
施正之建築師事務所
門
M_單-玻璃 3_V13
LOD300
9957
15
施正之建築師事務所
門
M_單-玻璃 1_V13
LOD300
9665
15
施正之建築師事務所
門
M_單-冷房_V13
LOD300
10226
14
施正之建築師事務所
窗
M_單-百葉窗_V13
LOD300
11606
38
施正之建築師事務所
門
M_捲簾門_V13
LOD300
9848
26
施正之建築師事務所
門
M_帷幕牆雙玻璃_V13
LOD300
12108
22
施正之建築師事務所
門
M_帷幕牆單玻璃_V13
LOD300
10619
51
施正之建築師事務所
門
M_帷幕牆-店面-雙_V13
LOD300
10184
46
施正之建築師事務所
門
M_側燈 1_V13
LOD300
10440
11
施正之建築師事務所
門
M_門-開口_V13
LOD300
10653
12
施正之建築師事務所
帷幕系統
M_鋸齒形表面_V13
LOD300
14154
7
施正之建築師事務所
帷幕系統
M_箭頭表面_V13
LOD300
12446
3
施正之建築師事務所
帷幕系統
M_菱形棋盤表面_V13
LOD300
12354
5
施正之建築師事務所
每頁
20
50
100
筆
1
2
...
40
41
42
43