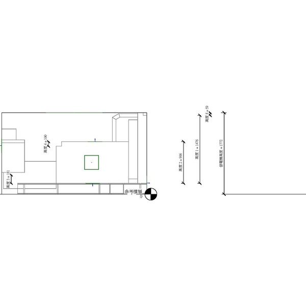
M_柴油機緊急發電機
OmniClass 編碼:22-48 10 00
OmniClass 類別:發電設備 Electrical Power Generation Equipment
MasterFormat 編碼:48 10 00
MasterFormat 類別:發電設備 Electrical Power Generation Equipment
PCCES 編碼:16 200
PCCES 類別:電力 Electrical Power
LOD:300
元件供應商:施正之建築師事務所
設計/生產地:資料建置中
產品網址:資料建置中
資料建置中
碳足跡:kgCO2e
資料建置中
初審單位:中華民國全國建築師公會
複審單位:中華民國全國建築師公會
Free
model formats
Revit
-
M_柴油機緊急發電機.rfaver.2018 444 KB
ArchiCAD
- 暫無資料
AutoCAD
- 暫無資料
IFC
- 暫無資料
評分與評論
5.0
共0 則評分
5
4
3
2
1
暫無評論
相關元件
電力系統
M_風力發電機
施正之建築師事務所
3,730
電力系統
M_瓦斯緊急發電機
施正之建築師事務所
8,172
電力系統
M_不斷電電源供應器
施正之建築師事務所
8,628
電力系統
M_交流變頻驅動器
施正之建築師事務所
9,404















