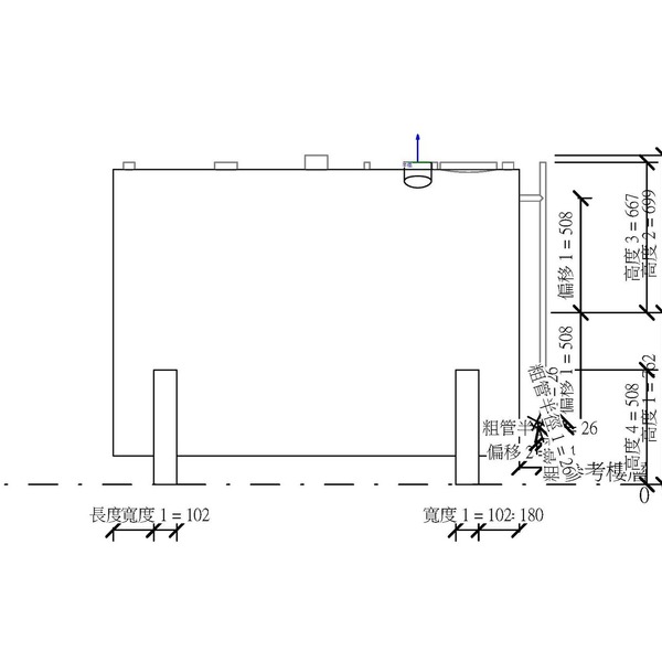
M_儲水箱 - 過熱保護
OmniClass 編碼:23-27 29 17 11
OmniClass 類別:水塔 Water Towers
MasterFormat 編碼:33 16 00
MasterFormat 類別:自來水儲水箱 Water Utility Storage Tanks
PCCES 編碼:15 450
PCCES 類別:飲用水貯水槽 Potable Water Storage Tanks
LOD:300
元件供應商:施正之建築師事務所
設計/生產地:資料建置中
產品網址:資料建置中
資料建置中
碳足跡:kgCO2e
資料建置中
初審單位:中華民國全國建築師公會
複審單位:中華民國全國建築師公會
Free
model formats
Revit
-
M_儲水箱 - 過熱保護.rfaver.2018 388 KB
ArchiCAD
- 暫無資料
AutoCAD
- 暫無資料
IFC
- 暫無資料
評分與評論
5.0
共0 則評分
5
4
3
2
1
暫無評論
相關元件
液體工程
M_回流防止器 - 15-50 mm
施正之建築師事務所
11,326
給排水工程
M_衛生設施污水管接頭
施正之建築師事務所
10,911
商用設施設備
M_回收筒-圓形
施正之建築師事務所
11,350
商用設施設備
M_回收筒-方形
施正之建築師事務所
9,254
柱
M_含 ML 的槽中鑄件 HMS
施正之建築師事務所
11,097
柱
M_T-頂蓋螺栓 HS
施正之建築師事務所
9,997
柱
M_含錨定 AN 的槽中鑄件 HTU
施正之建築師事務所
11,024
柱
M_冷成形槽 HZA
施正之建築師事務所
9,959
給排水工程
DR_球塞閥_V22
施正之建築師事務所
5,496















