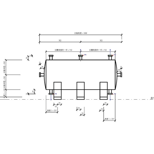
M_儲水箱 - 水平
OmniClass 編碼:23-27 29 17 11
OmniClass 類別:水塔 Water Towers
MasterFormat 編碼:33 16 00
MasterFormat 類別:自來水儲水箱 Water Utility Storage Tanks
PCCES 編碼:15 450
PCCES 類別:飲用水貯水槽 Potable Water Storage Tanks
LOD:300
元件供應商:施正之建築師事務所
設計/生產地:資料建置中
產品網址:資料建置中
資料建置中
碳足跡:kgCO2e
資料建置中
初審單位:中華民國全國建築師公會
複審單位:中華民國全國建築師公會
Free
model formats
Revit
-
M_儲水箱 - 水平.rfaver.2018 316 KB
ArchiCAD
- 暫無資料
AutoCAD
- 暫無資料
IFC
- 暫無資料
評分與評論
5.0
共0 則評分
5
4
3
2
1
暫無評論
相關元件
柱
M_磚箍筋錨定-ML
施正之建築師事務所
11,352
給排水工程
M_冷凝水接頭
施正之建築師事務所
9,831
給排水工程
M_逆止閥(法蘭)_V22
施正之建築師事務所
6,227
商用設施設備
M_回收筒-方形
施正之建築師事務所
9,254
柱
M_冷成形槽 HTA1
施正之建築師事務所
11,520
給排水工程
電動閥_V18
台灣積體電路製造股份有限公司
4,156
空調工程
圓形彎頭_V18
台灣積體電路製造股份有限公司
3,803
給排水工程
M_管接頭 - 其他 - 機械設備
施正之建築師事務所
10,273
給排水工程
M_屋頂排水管接頭
施正之建築師事務所
10,502















