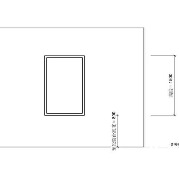
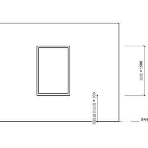
參數型parametric fix W_v18
OmniClass 編碼:23-17 13 00
OmniClass 類別:窗 Windows
MasterFormat 編碼:08 00 00
MasterFormat 類別:門窗 Openings
PCCES 編碼:08 500
PCCES 類別:窗 Windows
LOD:300
元件供應商:施正之建築師事務所
設計/生產地:資料建置中
產品網址:資料建置中
資料建置中
碳足跡:kgCO2e
資料建置中
初審單位:中華民國全國建築師公會
複審單位:中華民國全國建築師公會
NT$30
model formats
Revit
-
參數型parametric fix W_v18.rfaver.2018 384 KB
ArchiCAD
- 暫無資料
AutoCAD
- 暫無資料
IFC
- 暫無資料
評分與評論
5.0
共0 則評分
5
4
3
2
1
暫無評論
相關元件
窗
M_有裝飾外框的拱頂_V13
施正之建築師事務所
10,913
門
M_門-開口_V13
施正之建築師事務所
10,653
窗
雙開窗v17
台北國際聯合建築師事務所
11,601
門
M_單-裝飾 1_V13
施正之建築師事務所
9,243
門
雙-嵌平_V18
台灣積體電路製造股份有限公司
3,868
門
M_單-嵌平可視_V13
施正之建築師事務所
10,131
窗
一欄二列推窗v17
台北國際聯合建築師事務所
10,805















