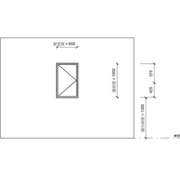
推開隔音氣密窗_WIN-236D_W6L_600X1000_外左
OmniClass 編碼:23-17 13 00
OmniClass 類別:窗 Windows
MasterFormat 編碼:08 00 00
MasterFormat 類別:門窗 Openings
PCCES 編碼:08 500
PCCES 類別:窗 Windows
LOD:300
元件供應商:創優微圖股份有限公司
設計/生產地:資料建置中
產品網址:資料建置中
資料建置中
碳足跡:kgCO2e
資料建置中
初審單位:中華民國全國建築師公會
複審單位:中華民國全國建築師公會
NT$30
model formats
Revit
-
推開隔音氣密窗_WIN-236D_W6L_600X1000_外左.rfaver.2018 364 KB
ArchiCAD
- 暫無資料
AutoCAD
- 暫無資料
IFC
- 暫無資料
評分與評論
5.0
共0 則評分
5
4
3
2
1
暫無評論
相關元件
門
單扇木骨架防火門
賜福門窗股份有限公司
13,025
窗
M_有裝飾外框的百葉窗_V13
施正之建築師事務所
12,838
窗
M_例證 - 固定_V13
施正之建築師事務所
8,998
窗
一欄二列雙開窗v17
台北國際聯合建築師事務所
10,184















