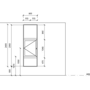
推拉隔音氣密窗+固定窗_WIN-236FDF_W11R_750X2350_外右
OmniClass 編碼:23-17 13 00
OmniClass 類別:窗 Windows
MasterFormat 編碼:08 00 00
MasterFormat 類別:門窗 Openings
PCCES 編碼:08 500
PCCES 類別:窗 Windows
LOD:300
元件供應商:創優微圖股份有限公司
設計/生產地:資料建置中
產品網址:資料建置中
資料建置中
碳足跡:kgCO2e
資料建置中
初審單位:中華民國全國建築師公會
複審單位:中華民國全國建築師公會
NT$30
model formats
Revit
-
推拉隔音氣密窗+固定窗_WIN-236FDF_W11R_750X2350_外右.rfaver.2018 368 KB
ArchiCAD
- 暫無資料
AutoCAD
- 暫無資料
IFC
- 暫無資料
評分與評論
5.0
共0 則評分
5
4
3
2
1
暫無評論
相關元件
門
單扇肯特鋼製防火門
世紀防火科技股份有限公司
12,499
窗
一欄二列雙開窗v17
台北國際聯合建築師事務所
10,184
門
雙扇木骨架防火門
賜福門窗股份有限公司
14,462
門
M_雙-嵌平_V13
施正之建築師事務所
11,292
門
M_側燈 2_V13
施正之建築師事務所
9,124
窗
M_楣窗_V13
施正之建築師事務所
11,119
窗
M_有裝飾外框的組合櫃_V13
施正之建築師事務所
10,657
門
鍍鋅鋼板烤漆門_複壁_45X45
創優微圖股份有限公司
7,831















