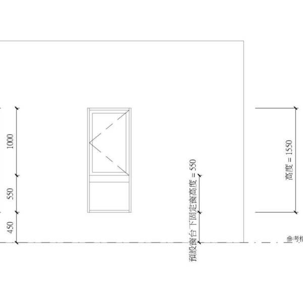
一欄二列推窗v17
OmniClass 編碼:23-17 13 00
OmniClass 類別:窗 Windows
MasterFormat 編碼:08 00 00
MasterFormat 類別:門窗 Openings
PCCES 編碼:08 500
PCCES 類別:窗 Windows
LOD:300
元件供應商:台北國際聯合建築師事務所
設計/生產地:資料建置中
產品網址:資料建置中
資料建置中
碳足跡:kgCO2e
資料建置中
初審單位:中華民國全國建築師公會
複審單位:中華民國全國建築師公會
Free
model formats
Revit
-
一欄二列推窗.rfaver.2018 376 KB
ArchiCAD
- 暫無資料
AutoCAD
- 暫無資料
IFC
- 暫無資料
評分與評論
5.0
共0 則評分
5
4
3
2
1
暫無評論
相關元件
窗
雙開窗v17
台北國際聯合建築師事務所
11,601
窗
一欄二列雙開窗v17
台北國際聯合建築師事務所
10,184
門
門禁玻璃門_V18
台灣積體電路製造股份有限公司
4,483
門
M_帷幕牆單玻璃_V13
施正之建築師事務所
10,619
窗
M_有裝飾外框的拱頂_V13
施正之建築師事務所
10,913
窗
M_有裝飾外框的推拉窗_V13
施正之建築師事務所
10,410
門
M_雙-玻璃 1_V13
施正之建築師事務所
9,240















