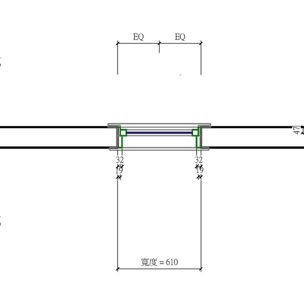
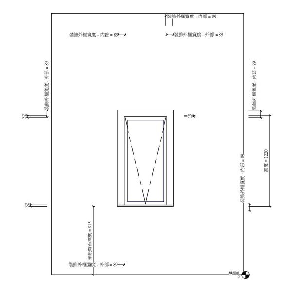
M_有裝飾外框的推拉窗_V13
OmniClass 編碼:23-17 13 00
OmniClass 類別:窗 Windows
MasterFormat 編碼:08 00 00
MasterFormat 類別:門窗 Openings
PCCES 編碼:08 500
PCCES 類別:窗 Windows
LOD:300
元件供應商:施正之建築師事務所
設計/生產地:資料建置中
產品網址:資料建置中
資料建置中
碳足跡:kgCO2e
資料建置中
初審單位:中華民國全國建築師公會
複審單位:中華民國全國建築師公會
Free
model formats
Revit
-
M_有裝飾外框的推拉窗.rfaver.2013 280 KB
ArchiCAD
- 暫無資料
AutoCAD
- 暫無資料
IFC
- 暫無資料
評分與評論
5.0
共0 則評分
5
4
3
2
1
暫無評論
相關元件
門
單個嵌平_V18
台灣積體電路製造股份有限公司
3,934
窗
M_有裝飾外框的雙扇推開窗_V13
施正之建築師事務所
10,107
窗
M_有裝飾外框的外推窗_V13
施正之建築師事務所
9,436
窗
M_窗-方形開口_V13
施正之建築師事務所
9,481
門
M_雙-玻璃 2_V13
施正之建築師事務所
9,676
窗
M_單-百葉窗_V13
施正之建築師事務所
11,606
門
M_單-嵌板 4_V13
施正之建築師事務所
9,731
門
M_單個嵌平_V13
施正之建築師事務所
11,286













