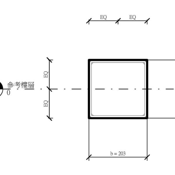
M_HSS-空心結構剖面_V13
OmniClass 編碼:23-13 35 00
OmniClass 類別:構架產品 Framing Products
MasterFormat 編碼:05 12 00
MasterFormat 類別:結構鋼 Structural Steel Framing
PCCES 編碼:05 120
PCCES 類別:結構鋼 Structural Steel
LOD:300
元件供應商:施正之建築師事務所
設計/生產地:資料建置中
產品網址:資料建置中
資料建置中
碳足跡:kgCO2e
資料建置中
初審單位:中華民國全國建築師公會
複審單位:中華民國全國建築師公會
Free
model formats
Revit
-
M_HSS-空心結構剖面.rfaver.2013 452 KB
ArchiCAD
- 暫無資料
AutoCAD
- 暫無資料
IFC
- 暫無資料
評分與評論
5.0
共0 則評分
5
4
3
2
1
暫無評論
相關元件
外牆
M_地面 CMU-側面
施正之建築師事務所
11,550
外牆
M_圓形有凹槽的 CMU-剖面
施正之建築師事務所
9,828
柱
M_WRF-焊接簡化凸緣_V13
施正之建築師事務所
12,292
柱
通用柱1_V18
台灣積體電路製造股份有限公司
5,227
柱
M_K-連續橫木托樑-條狀樑腹_V13
施正之建築師事務所
13,471
外牆
M_絕緣連接 HIT-BX-MOD
施正之建築師事務所
13,443
柱
M_樁頂蓋-1 樁_V13
施正之建築師事務所
12,049
柱
M_HP-支承樁_V13
施正之建築師事務所
12,059
柱
M_蜂巢式樑_V13
施正之建築師事務所
12,298
柱
M_樁頂蓋-含樁矩形_V13
施正之建築師事務所
10,987
樑
M_混凝土柱-圓形-頂端
施正之建築師事務所
11,538













