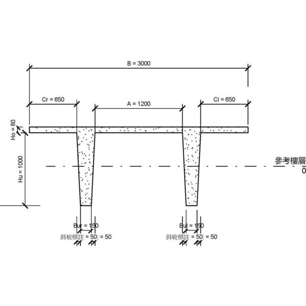
M_預鑄混凝土雙 T 形_V13
OmniClass 編碼:23-13 31 15
OmniClass 類別:預製結構混凝土 Precast Structural Concrete
MasterFormat 編碼:03 40 00
MasterFormat 類別:預鑄混凝土 Precast Concrete
PCCES 編碼:03 400
PCCES 類別:預鑄混凝土 Precast Concrete
LOD:300
元件供應商:施正之建築師事務所
設計/生產地:資料建置中
產品網址:資料建置中
資料建置中
碳足跡:kgCO2e
資料建置中
初審單位:中華民國全國建築師公會
複審單位:中華民國全國建築師公會
Free
model formats
Revit
-
M_預鑄混凝土雙 T 形.rfaver.2013 244 KB
ArchiCAD
- 暫無資料
AutoCAD
- 暫無資料
IFC
- 暫無資料
評分與評論
5.0
共0 則評分
5
4
3
2
1
暫無評論
相關元件
樓板
馬貝金鋼砂環氧砂漿地坪v21
施正之建築師事務所
6,497
板
M_預鑄樑-倒置 T 形-頂部
施正之建築師事務所
11,832
板
M_預鑄實體平樓板-頂部
施正之建築師事務所
12,045
板
M_預鑄有柄平台構件-雙 T 形-側面
施正之建築師事務所
11,056
柱
M_M-其他寬凸緣_V13
施正之建築師事務所
12,641
板
M_預鑄-含斜剪切末端的錐形樑_V13
施正之建築師事務所
11,282
屋頂
ARDEX屋頂板一次防水_V18
施正之建築師事務所
6,128
柱
M_單剪力定位銷 HSD-SET2
施正之建築師事務所
11,797
柱
M_樁頂蓋-9 樁_V13
施正之建築師事務所
12,079
柱
M_HSS-空心結構剖面_V13
施正之建築師事務所
11,102
外牆
M_絕緣連接 HIT-BX-MOD
施正之建築師事務所
13,443
柱
M_C-槽_V13
施正之建築師事務所
11,916
外牆
M_PVC 窗框 T 形砌塊-頂部
施正之建築師事務所
10,737
板
M_預鑄-大樑 I-平行-等截柱_V13
施正之建築師事務所
11,862











