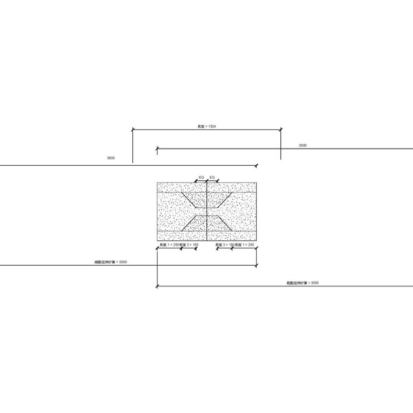
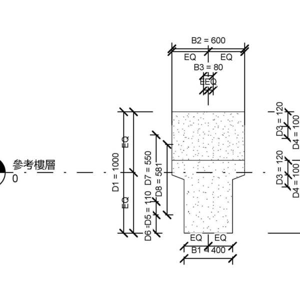
M_預鑄-大樑 I-鞍形屋頂-支撐強化_V13
OmniClass 編碼:23-13 31 15
OmniClass 類別:預製結構混凝土 Precast Structural Concrete
MasterFormat 編碼:03 40 00
MasterFormat 類別:預鑄混凝土 Precast Concrete
PCCES 編碼:03 400
PCCES 類別:預鑄混凝土 Precast Concrete
LOD:300
元件供應商:施正之建築師事務所
設計/生產地:資料建置中
產品網址:資料建置中
資料建置中
碳足跡:kgCO2e
資料建置中
初審單位:中華民國全國建築師公會
複審單位:中華民國全國建築師公會
Free
model formats
Revit
-
M_預鑄-大樑 I-鞍形屋頂-支撐強化.rfaver.2013 308 KB
ArchiCAD
- 暫無資料
AutoCAD
- 暫無資料
IFC
- 暫無資料
評分與評論
5.0
共0 則評分
5
4
3
2
1
暫無評論
相關元件
柱
M_樁頂蓋-6 樁_V13
施正之建築師事務所
11,889
柱
M_雙 C-槽_V13
施正之建築師事務所
14,628
樑
M_具有可選起拱的樓板-剖面
施正之建築師事務所
11,132
外牆
M_橡膠窗框 T 形砌塊-頂部
施正之建築師事務所
11,342
外牆
M_砌樑-單-剖面
施正之建築師事務所
11,180
樑
M_混凝土基腳-矩形-剖面
施正之建築師事務所
11,011
柱
M_SLDQ 套管部件-直鋼筋
施正之建築師事務所
13,198
外牆
M_有凹槽的 CMU-4 凹槽-剖面
施正之建築師事務所
10,332
柱
M_LL-雙角鋼_V13
施正之建築師事務所
12,005
板
M_預鑄-含剪切末端的矩形樑_V13
施正之建築師事務所
13,789













