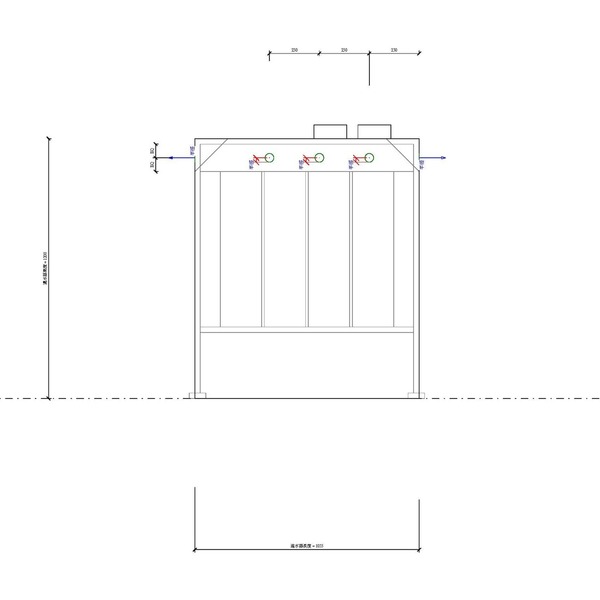
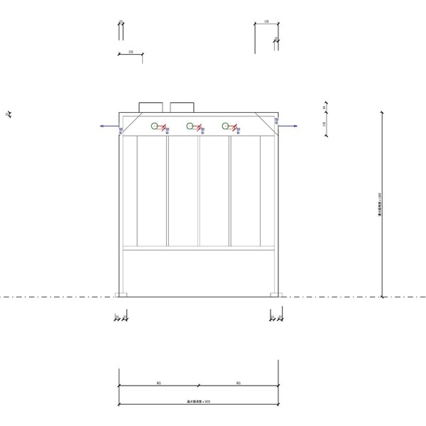
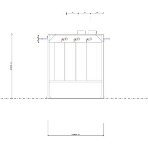
M_濾水器 - 吊掛式
OmniClass 編碼:22-46 61 00
OmniClass 類別:過濾設備 Filtration Equipment
MasterFormat 編碼:46 61 00
MasterFormat 類別:過濾設備 Filtration Equipment
PCCES 編碼:15 470
LOD:300
元件供應商:施正之建築師事務所
設計/生產地:資料建置中
產品網址:資料建置中
資料建置中
碳足跡:kgCO2e
資料建置中
初審單位:中華民國全國建築師公會
複審單位:中華民國全國建築師公會
Free
model formats
Revit
-
M_濾水器 - 吊掛式.rfaver.2018 304 KB
ArchiCAD
- 暫無資料
AutoCAD
- 暫無資料
IFC
- 暫無資料
評分與評論
5.0
共0 則評分
5
4
3
2
1
暫無評論
相關元件
液體工程
M_濾沙器
施正之建築師事務所
2,519
液體工程
M_濾水器 - 壁掛式
施正之建築師事務所
2,762















