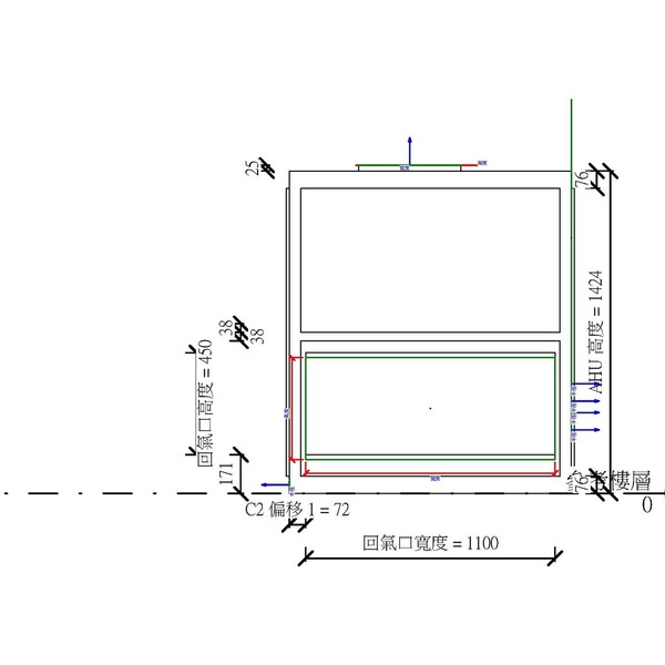
M_空氣調節箱 - 直立箱型 - DX - 21-35 kW
OmniClass 編碼:22-23 73 00
MasterFormat 編碼:23 73 00
MasterFormat 類別:室內中央站空氣處理機組 Indoor Central-Station Air-Handling Units
PCCES 編碼:15 720
PCCES 類別:空氣調節箱 Air Handling Units
LOD:300
元件供應商:施正之建築師事務所
設計/生產地:資料建置中
產品網址:資料建置中
資料建置中
碳足跡:kgCO2e
資料建置中
初審單位:中華民國全國建築師公會
複審單位:中華民國全國建築師公會
Free
model formats
Revit
-
M_空氣調節箱 - 直立箱型 - DX - 21-35 kW.rfaver.2018 312 KB
ArchiCAD
- 暫無資料
AutoCAD
- 暫無資料
IFC
- 暫無資料
評分與評論
5.0
共0 則評分
5
4
3
2
1
暫無評論
相關元件
空調工程
M_冷凝罩 - 爐
施正之建築師事務所
14,057
氣體工程
M_加濕器- 蒸氣 - 高容量
施正之建築師事務所
13,188
空調工程
M_正方形回氣通風調節裝置
施正之建築師事務所
14,343
電力系統
M_導管主體 - C 類 - PVC
施正之建築師事務所
11,748















