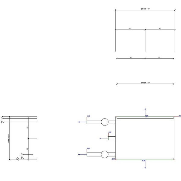
M_AHU 盤管 - 冷煤 - 室內
OmniClass 編碼:22-23 73 00
MasterFormat 編碼:23 73 00
MasterFormat 類別:室內中央站空氣處理機組 Indoor Central-Station Air-Handling Units
PCCES 編碼:15 720
PCCES 類別:空氣調節箱 Air Handling Units
LOD:300
元件供應商:施正之建築師事務所
設計/生產地:資料建置中
產品網址:資料建置中
資料建置中
碳足跡:kgCO2e
資料建置中
初審單位:中華民國全國建築師公會
複審單位:中華民國全國建築師公會
Free
model formats
Revit
-
M_AHU 盤管 - 冷煤 - 室內.rfaver.2018 336 KB
ArchiCAD
- 暫無資料
AutoCAD
- 暫無資料
IFC
- 暫無資料
評分與評論
5.0
共0 則評分
5
4
3
2
1
暫無評論
相關元件
給排水工程
雨水恆壓變頻加壓泵_V22
施正之建築師事務所
6,942
空調工程
排氣格柵_V18
台灣積體電路製造股份有限公司
6,585
電力系統
M_導管接線盒 - 轉接頭 - 鋁
施正之建築師事務所
12,674
液體工程
M_離心液態冷水機 - 雙壓縮機
施正之建築師事務所
15,972















