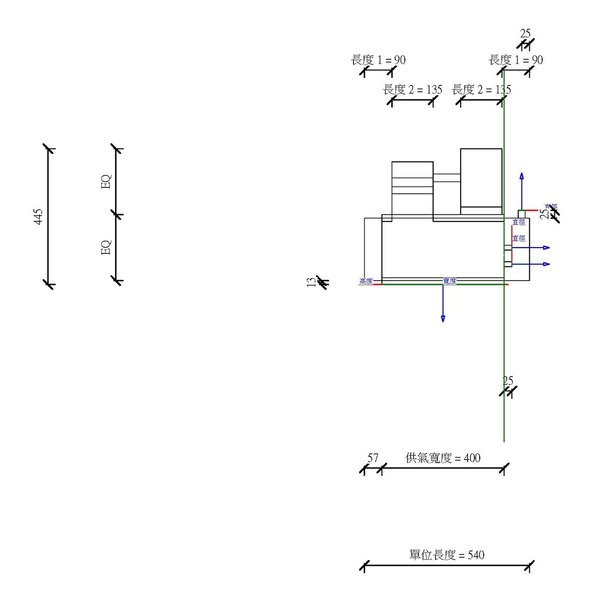
M_風機盤管機組 - 水平 - DX
OmniClass 編碼:22-23 70 00
OmniClass 類別:中央暖風、通氣與空調設備 Central HVAC Equipment
MasterFormat 編碼:23 70 00
MasterFormat 類別:中央空調設備 Central HVAC Equipment
PCCES 編碼:15 911
LOD:300
元件供應商:施正之建築師事務所
設計/生產地:資料建置中
產品網址:資料建置中
資料建置中
碳足跡:kgCO2e
資料建置中
初審單位:中華民國全國建築師公會
複審單位:中華民國全國建築師公會
Free
model formats
Revit
-
M_風機盤管機組 - 水平 - DX.rfaver.2018 300 KB
ArchiCAD
- 暫無資料
AutoCAD
- 暫無資料
IFC
- 暫無資料
評分與評論
5.0
共0 則評分
5
4
3
2
1
暫無評論
相關元件
電力系統
M_導管主體 - T 類 - 鋁
施正之建築師事務所
13,239
電力系統
M_導管管接頭 - PVC
施正之建築師事務所
12,179
電力系統
M_導管主體 - L 類 - 鋁
施正之建築師事務所
11,612
電力系統
M_導管主體 - E 類 - 鋁
施正之建築師事務所
11,990
電力系統
M_導管主體 - C 類 - 鋁
施正之建築師事務所
13,505
空調工程
M_屋頂 AHU 混合箱
施正之建築師事務所
14,306
電力系統
M_圓形盒 - 五個出口 - 鋁
施正之建築師事務所
12,210















