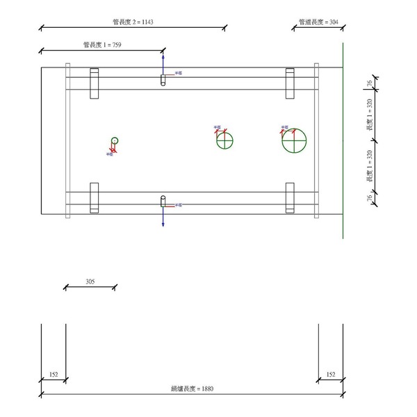
M_火管鍋爐
OmniClass 編碼:22-23 52 00
OmniClass 類別:加熱鍋爐 Heating Boilers
MasterFormat 編碼:23 52 00
MasterFormat 類別:加熱鍋爐 Heating Boilers
PCCES 編碼:15 510
LOD:300
元件供應商:施正之建築師事務所
設計/生產地:資料建置中
產品網址:資料建置中
資料建置中
碳足跡:kgCO2e
資料建置中
初審單位:中華民國全國建築師公會
複審單位:中華民國全國建築師公會
Free
model formats
Revit
-
M_火管鍋爐.rfaver.2018 332 KB
ArchiCAD
- 暫無資料
AutoCAD
- 暫無資料
IFC
- 暫無資料
評分與評論
5.0
共0 則評分
5
4
3
2
1
暫無評論
相關元件
空調工程
M_AHU 檢測模組 - 中
施正之建築師事務所
14,807
空調工程
M_暖氣裝置-循環加熱基板
施正之建築師事務所
16,400
電力系統
M_導管主體 - E 類 - PVC
施正之建築師事務所
11,445
空調工程
M_風機模組 - 前端排放
施正之建築師事務所
12,915















