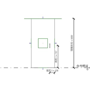
M_自動切換開關
OmniClass 編碼:23-35 31 00
OmniClass 類別:電力分配設備 Electrical Power Distribution Devices
MasterFormat 編碼:33 71 26
MasterFormat 類別:輸配電設備 Transmission and Distribution Equipment
PCCES 編碼:16 300
PCCES 類別:輸配電 Transmission and Distribution
LOD:300
元件供應商:施正之建築師事務所
設計/生產地:資料建置中
產品網址:資料建置中
資料建置中
碳足跡:kgCO2e
資料建置中
初審單位:中華民國全國建築師公會
複審單位:中華民國全國建築師公會
Free
model formats
Revit
-
M_自動切換開關.rfaver.2018 296 KB
ArchiCAD
- 暫無資料
AutoCAD
- 暫無資料
IFC
- 暫無資料
評分與評論
5.0
共0 則評分
5
4
3
2
1
暫無評論
相關元件
給排水工程
M_橢圓形交叉 - 墊塊
施正之建築師事務所
9,862
廠房/工廠設施設備
M_混合槽 - 圓錐底
施正之建築師事務所
12,179
柱
M_冷成形槽 HTA2
施正之建築師事務所
11,450















