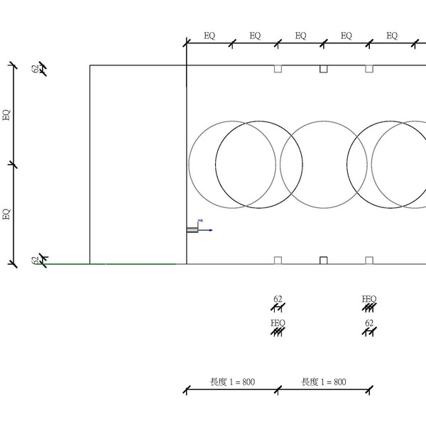
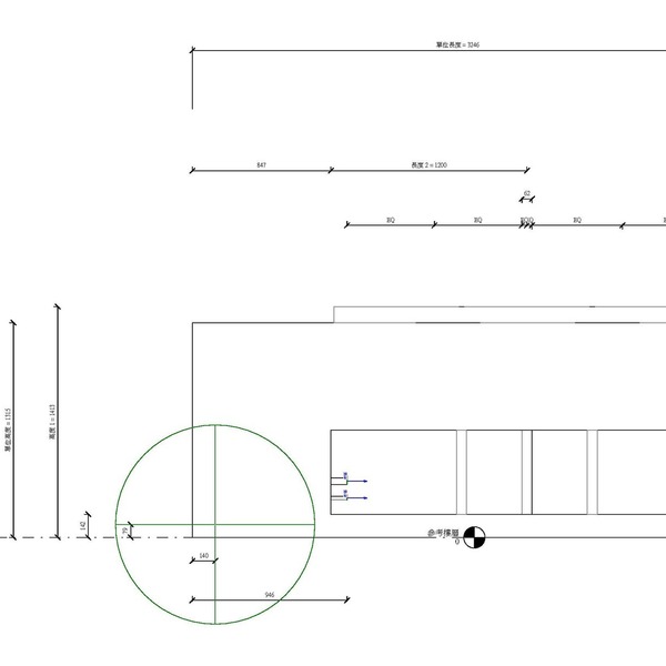
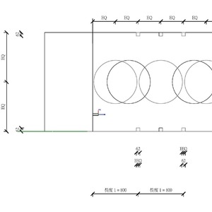
M_冷水機 - 氣冷式 - DX - 88-141 kW
OmniClass 編碼:22-23 63 13
OmniClass 類別:氣冷式冷凝氣 Air-Cooled Refrigerant Condensers
MasterFormat 編碼:23 62 13
PCCES 編碼:15 185
PCCES 類別:氣冷式冷凝器 Air Cooling Condenser
LOD:300
元件供應商:施正之建築師事務所
設計/生產地:資料建置中
產品網址:資料建置中
資料建置中
碳足跡:kgCO2e
資料建置中
初審單位:中華民國全國建築師公會
複審單位:中華民國全國建築師公會
Free
model formats
Revit
-
M_冷水機 - 氣冷式 - DX - 88-141 kW.rfaver.2018 320 KB
ArchiCAD
- 暫無資料
AutoCAD
- 暫無資料
IFC
- 暫無資料
評分與評論
5.0
共0 則評分
5
4
3
2
1
暫無評論
相關元件
空調工程
M_離心風機 - 同軸- 筒狀
施正之建築師事務所
13,489
空調工程
M_屋頂 AHU 盤管 - 冷煤
施正之建築師事務所
13,435















